宝安壹方玖誉,以白为诗,织就慵懒浪漫的阳光品质生活

鸿荣源·壹方玖誉°
BaoAn,ShenZhen,2025
如《巴黎隐士》中所说,
“我相信缓慢,平和,细水长流的力量。”
遵循居者的归心向往,设计笔触显形于外,亦追随于内,
让此刻的隽永随着空间的韵律由眼入心。
DESIGN OF N+1° 实用生活美学设计全案 °
白色作为空间的主色调,如纯净的艺术画布,消解了边界的压迫感,为空间铺陈出松弛慵懒的基底,让身心一踏入便卸下疲惫,沉浸于轻盈自在的氛围中。大面积落地窗如 “自然的画框”,将充足阳光与户外绿意引入室内,白色的墙面与地面化作光影的容器,让阳光在空间里温柔漫溯,使 “阳光” 成为流动的浪漫因子,为生活晕染出温暖的呼吸感。
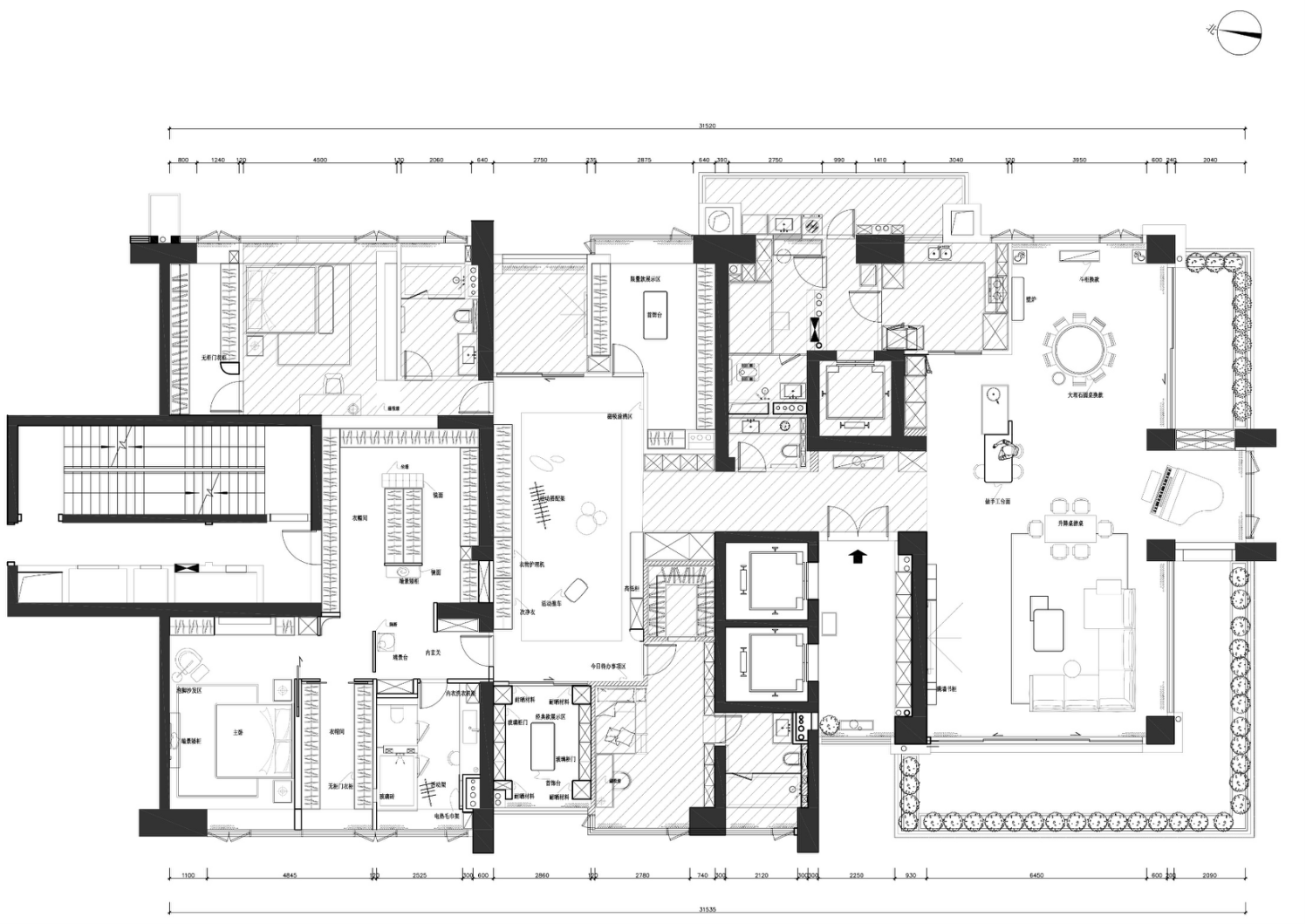
Floor plan 平面方案图 °

Living Room 客厅 °

客厅通过轻法式结合经典时尚的家具,在软装陈设细节上,融入优雅的色调柔美的造型,充分展现舒服的生活起居及精致的生活态度。










惬意的时光,在阳台处静享岁月的美好,通过自然景物与室外产生联动,为空间增添一丝慵懒,舒服的生活时光。
Master Bedroom 主卧 °


地面采用自然纹理的木质地板,温暖质朴;床前的几何纹样地毯柔化硬质地面,同时划分出睡眠核心区。左侧弧形门洞与置物架设计巧妙,置物架上的装饰器皿、书籍与拱形元素结合,为空间注入柔和浪漫感;远处的黑色铁艺玻璃隔断,既保证空间通透,又形成视觉层次,延伸了空间纵深感。






限量款展示区▲
通过轻法式结合经典时尚的家具,在软装陈设细节上,融入优雅的色调柔美的造型,充分展现舒服的生活起居及精致的生活态度。


经典款展示区▲
通过轻法式结合经典时尚的家具,在软装陈设细节上,融入优雅的色调柔美的造型,充分展现舒服的生活起居及精致的生活态度。


Living Room 起居室 °

这是一间融合轻奢质感与实用美学的起居室,以柔和的米白色为主调,营造出优雅通透、兼具 “收纳秩序” 与 “生活仪式感” 的氛围。
Project Information 项目信息°
设计出品 OFD 一度经纬°设计
项目名称 深圳 鸿荣源·壹方玖誉°